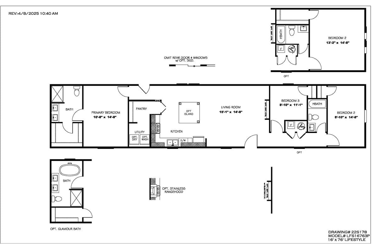
Homes | Pantry House | Vicksburg