Construction

Magnolia Estates
Magnolia Estates proudly serves the citizens of Mississippi, Louisiana, and Arkansas by offering high quality & durable manufactured homes & modular homes for sale
Enter your address or APN to check if this home fits on your property
Enter your property street address or APN
Interior
Mechanical
Kitchen
Exterior
Dealer License #:
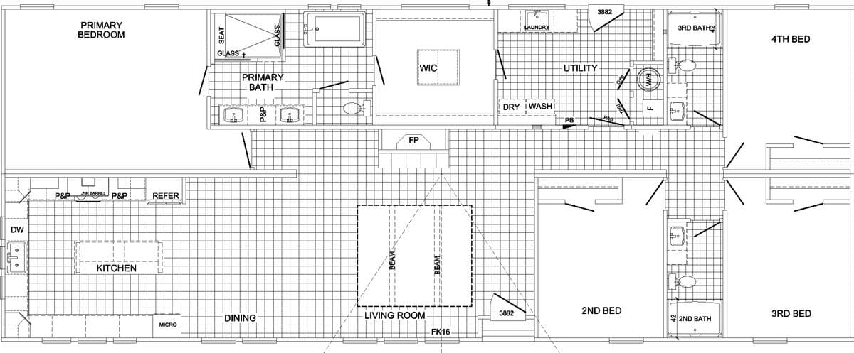
Images of homes are solely for illustrative purposes and should not be relied upon. Images may not accurately represent the actual condition of a home as constructed, and may contain options which are not standard on all homes.
Brookhaven
Vicksburg
Hattiesburg
4 Bed | 3 Bath | 2,256 Sq. Ft. | 32' x 80'
4 Bed | 3 Bath | 2,400 Sq. Ft. | 32' x 80'
4 Bed | 2 Bath | 2,176 Sq. Ft. | 32' x 68'
4 Bed | 2 Bath | 2,400 Sq. Ft. | 29' x 84'